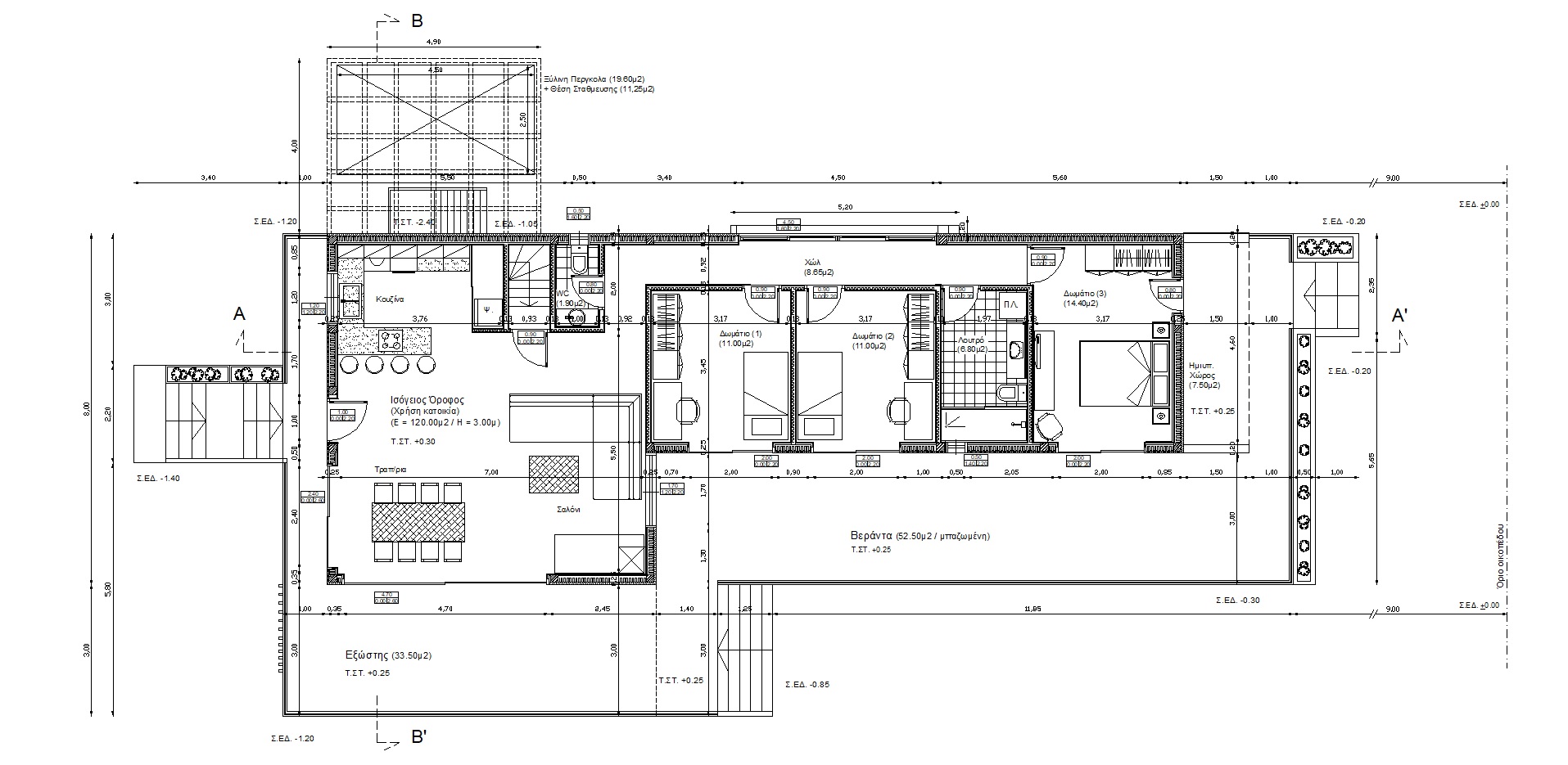
Νέα ισόγεια προκατασκευασμένη κατοικία με υπόγειο αποθήκη
1. Έκδοση οικοδομικής αδείας
2. Διαχείριση Έργου (επίβλεψη οικοδομικών εργασιών και συντονισμός τεχνικών συνεργείων)
25 Απρ 2025
15 Ιαν 2025
5 Ιουν 2024
16 Μάι 2023
28 Ιουν 2022
25 Απρ 2025
15 Ιαν 2025
5 Ιουν 2024
16 Μάι 2023
28 Ιουν 2022
14 Μαρ 2022
